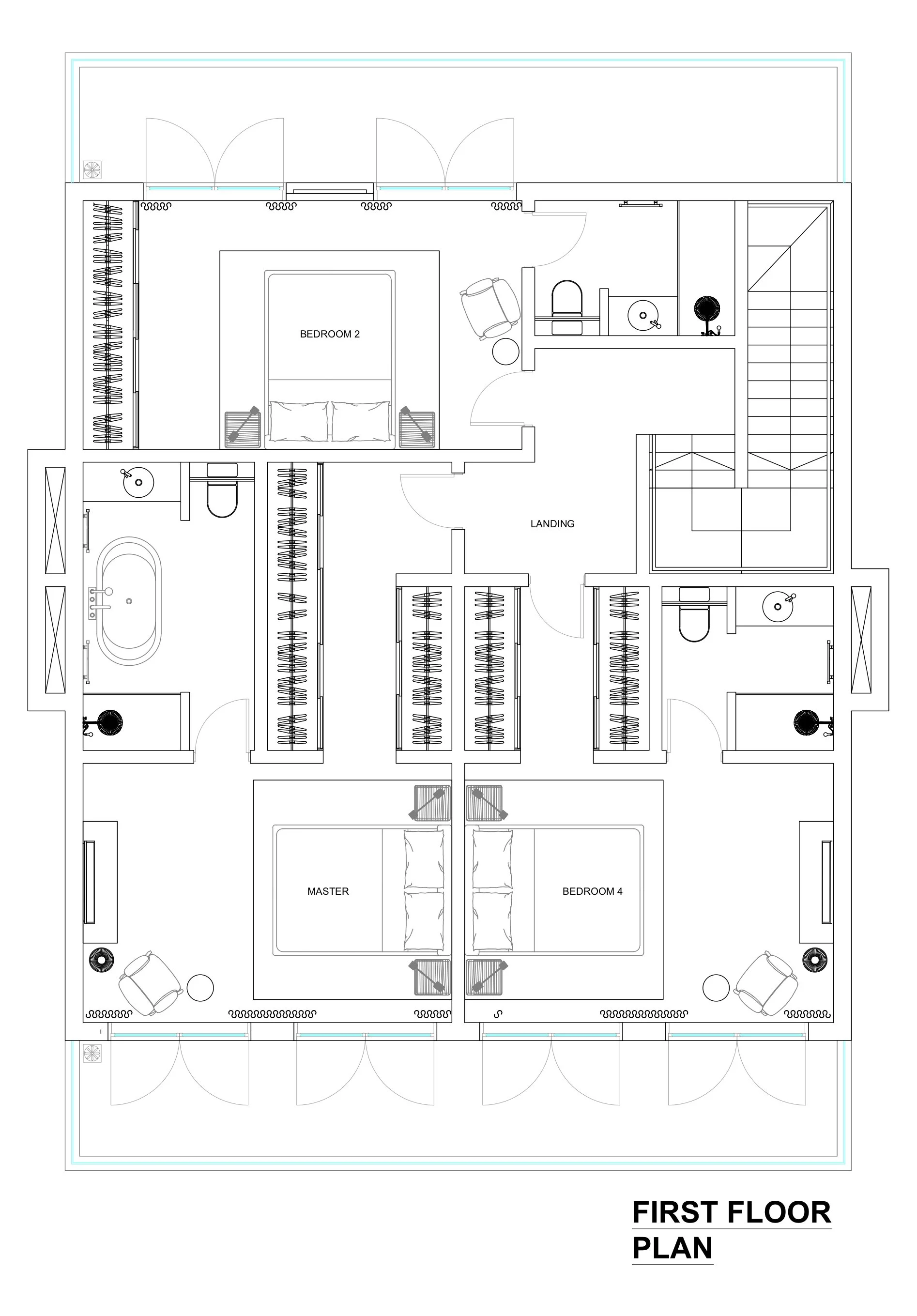
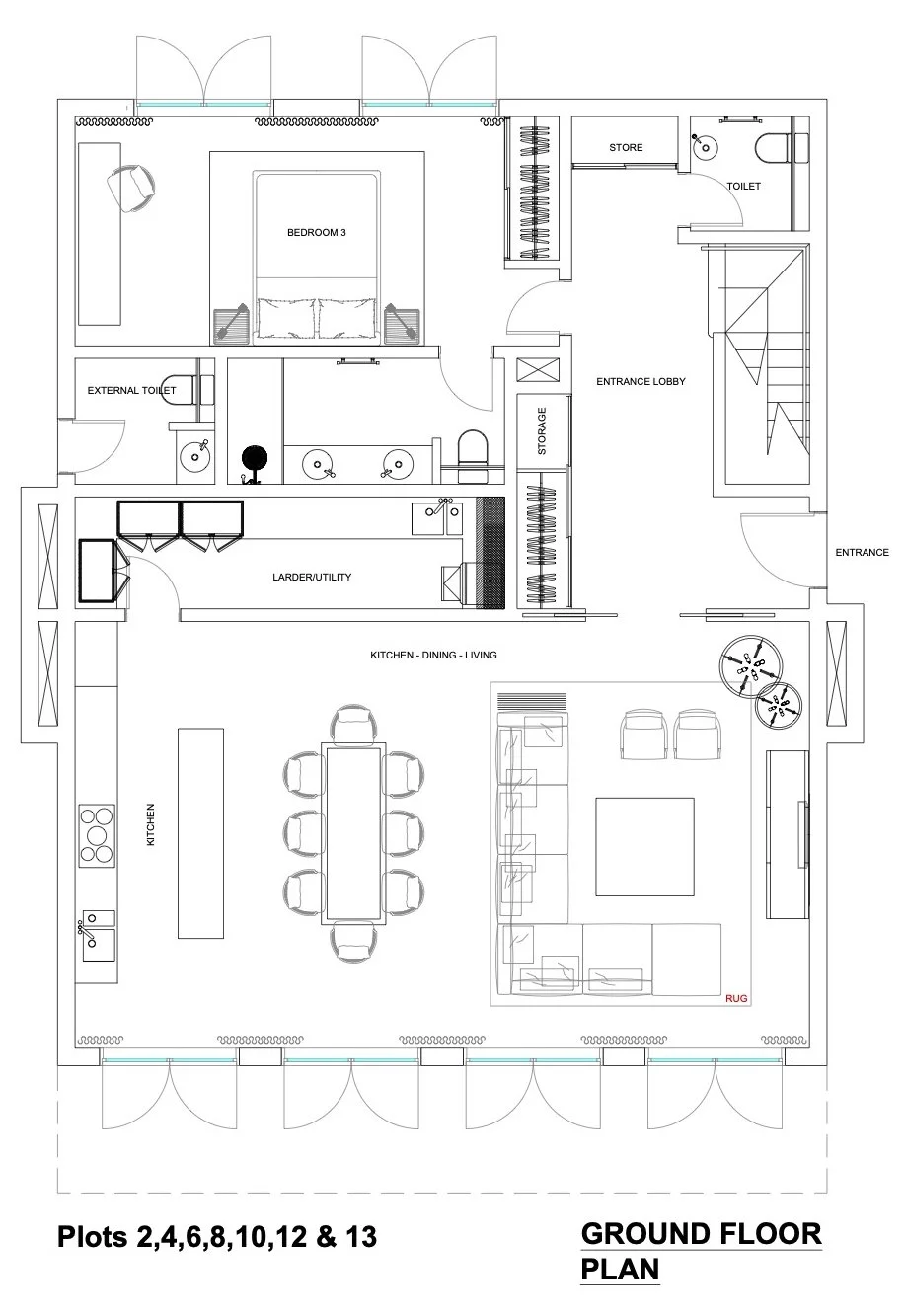
Spacious LivingEach property is generous in size and enjoys the benefit of a large garden as it is set in over 1 town plot and has ample parking. Back Back